A remarkable opportunity to acquire the largest out of three brand new three-bedroom detached bungalows, (one already sold) built by Anderwood Homes Ltd a developer nominated for the prestigious House Builders Awards 2026.
Presented to an exceptional standard, with a 92A rated EPC, this thoughtfully designed single-storey home offers outstanding quality throughout, combining contemporary living with long-term sustainability credentials rarely found in a new build at this level.
The roof is fitted with an integrated solar panel array, contributing to the property's impressive EPC rating of A (91) placing it in the very top tier of energy efficiency and offering buyers significant savings on running costs for years to come.
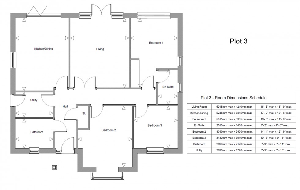
Internally, the accommodation is arranged across a well-planned single floor and briefly comprises:
A wide, light-filled entrance hall with solid oak internal doors, recessed ceiling lighting, and a loft hatch with integral lighting.
An open plan kitchen/dining room fitted with an impressive range of handleless gloss cabinetry, quartz worktops with contrasting black edging, a NEFF induction hob with statement black extractor, NEFF double integrated eye-level ovens, NEFF integrated dishwasher, fridge freezer, larder style pantry cupboard, an inset sink with a matte black mixer tap, and recessed downlighting throughout. Full-height bi-folding doors open directly onto the expansive rear patio.
A spacious and versatile sitting room with French doors to the rear garden and windows to two aspects create a bright, airy, and generously proportioned space.
Bedroom one is a well-proportioned double with its own en suite shower room, finished with contemporary large-format wall tiles, a fitted vanity unit, chrome fittings, heated towel rail, and an illuminated mirror cabinet.
Bedroom two is another comfortable double room to the front of the property.
Bedroom three is another double, suitable also as a home office or hobby room.
The family bathroom is finished to the same high standard, featuring a full-size panel bath, a separate rainfall shower head, large-format stone-effect tiling to half height and full height on the bath surround, vanity unit with basin, WC, and a heated towel rail.
The property features a high-efficiency Worcester Bosch boiler and a Solax Power photovoltaic inverter connected to the roof-mounted solar panels and is a key contributor to the property’s impressive A-rated performance.
A separate utility room provides valuable additional workspace and storage, with practical external access to the side and Neff plumbed in free standing washing machine and tumble dryer.
The property features a high-efficiency Worcester Bosch boiler and a Solax Power photovoltaic inverter connected to the roof-mounted solar panels and is a key contributor to the property’s impressive A-rated performance.
Outside
The rear of the property enjoys a private, south-facing garden which is mostly laid to lawn and bordered by new close-board fencing. A full-width patio creates the perfect space for outdoor dining and relaxation. A brand-new timber shed provides useful garden storage.
To the front, a wide gravel driveway offers excellent off-road parking, further enhanced by a substantial timber carport.
EPC RATING: Current A102
COUNCIL TAX BAND: TBC
SERVICES: Mains water, electricity, gas and drainage.
HEATING: Gas fired central heating.
BROADBAND: Ultrafast up to 1000 mbps download (Ofcom).
Before the tenancy starts (payable to Hayward Fox Lymington (the Agent))
Holding Deposit: One week’s rent. This is to reserve a property. Please Note: This will be withheld if any relevant person (including any guarantor(s)) withdraw from the tenancy, fail a Right-to-Rent check, provide materially significant false or misleading information, or fail to sign their tenancy agreement (and / or Deed of Guarantee) within 15 calendar days (or other Deadline for Agreement as mutually agreed in writing).
Deposit: 5 weeks rent
During the tenancy (payable to the Agent)
Unpaid Rent: Interest at 3% above the Bank of England Base Rate from Rent Due Date until paid in order to pursue non-payment of rent. Please Note: This will not be levied until the rent is more than 14 days in arrears.
Lost Keys or other security device: Tenants are liable to the actual cost of replacing any lost key(s) or other security device(s). If the loss results in locks needing to be changed, the actual costs of a locksmith, new lock and replacement keys for the tenant, landlord any other persons requiring keys will be charged to the tenant. If extra costs are incurred there will be a charge of £ 15 per hour (inc. VAT) for the time taken replacing lost key(s) or other security device(s).
Variation of Contract (Tenant’s Request): £ 50 (inc. VAT) per agreed variation. To cover the costs associated with taking landlord’s instructions as well as the preparation and execution of new legal documents.
Change of Sharer (Tenant’s Request): £ 50 (inc. VAT) per replacement tenant or any reasonable costs incurred if higher. To cover the costs associated with taking landlord’s instructions, new tenant referencing and Right-to-Rent checks, deposit registration as well as the preparation and execution of new legal documents.
Early Termination (Tenant’s Request): Should the tenant wish to leave their contract early; they shall be liable to the landlord’s costs in re-letting the property as well as all rent due under the tenancy until the start date of the replacement tenancy. These costs will be no more than the maximum amount of rent outstanding on the tenancy.
During the tenancy (payable to the provider) if permitted and applicable
Utilities: gas, electricity, water
Communications: telephone and broadband Installation of cable/satellite
Subscription to cable/satellite supplier
Television licence
Council Tax
Other permitted payments
Any other permitted payments, not included above, under the relevant legislation including contractual damages.
Tenant protection
Hayward Fox is a member of ARLA Propertymark CMP, which is a client money protection scheme, and also a member of The Property Ombudsman Scheme ( which is a redress scheme. You can find out more details on the agent’s website or by contacting the agent directly.
Rental payments
Rents are payable in advance by standing order with all payments being made 72 hours prior to your rent due date to allow for clearance.
Landlord Fees
Tenant Find: 60% of first months rent, minimum £ 594 (inc VAT)