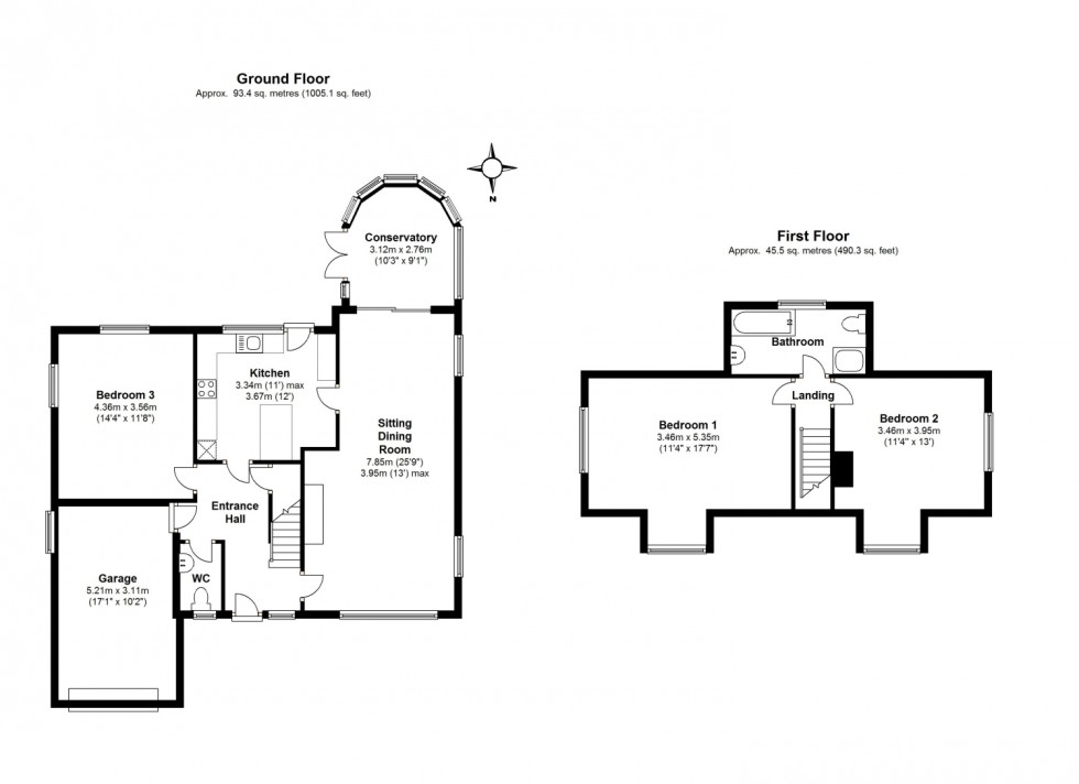
Three double bedroom detached Chalet bungalow in a popular area of Lymington. Offered part-furnished and available early November.
Hayward Fox are pleased to offer for let:
* Detached Chalet bungalow
* Three double bedrooms
* Large rear garden
* Family bathroom with bath and separate shower
* Driveway parking and garage
* Kitchen with Breakfast bar
* Conservatory
* EPC Band D
* Council Tax Band F
* Affordability: Prospective tenants will need to earn a combined £66,000 pa and have clear credit history.
Lymington is a lively sailing town at the mouth of the Lymington River enhanced by its marinas, yacht haven and sailing clubs. The Isle of Wight ferry operates regularly to Yarmouth. The lanes and streets around the Quay side retain the flavour of an old harbour town with Georgian and Victorian cottages, houses and unique shops. The bustling High Street supports an excellent variety of community facilities with a Saturday street market. Lymington is an ideal location for water sports enthusiasts with superb walks along the Foreshore with a wide range of recreational facilities being available throughout the New Forest National Park which surrounds the town. Lymington also has a nine hole golf course in an enviable position with views extending to the Isle of Wight, tennis club, bowls, cricket, rugby and football clubs, a wide range of schools and a recreation centre. Lymington is served by a good communication with road and rail links with the town railway station providing twice hourly access to Brockenhurst, a mainline station to London Waterloo. The international airports of Bournemouth and Southampton are both within 45 minute's drive.
Before the tenancy starts (payable to Hayward Fox Lymington (the Agent))
Holding Deposit: One week’s rent. This is to reserve a property. Please Note: This will be withheld if any relevant person (including any guarantor(s)) withdraw from the tenancy, fail a Right-to-Rent check, provide materially significant false or misleading information, or fail to sign their tenancy agreement (and / or Deed of Guarantee) within 15 calendar days (or other Deadline for Agreement as mutually agreed in writing).
Deposit: 5 weeks rent
During the tenancy (payable to the Agent)
Unpaid Rent: Interest at 3% above the Bank of England Base Rate from Rent Due Date until paid in order to pursue non-payment of rent. Please Note: This will not be levied until the rent is more than 14 days in arrears.
Lost Keys or other security device: Tenants are liable to the actual cost of replacing any lost key(s) or other security device(s). If the loss results in locks needing to be changed, the actual costs of a locksmith, new lock and replacement keys for the tenant, landlord any other persons requiring keys will be charged to the tenant. If extra costs are incurred there will be a charge of £ 15 per hour (inc. VAT) for the time taken replacing lost key(s) or other security device(s).
Variation of Contract (Tenant’s Request): £ 50 (inc. VAT) per agreed variation. To cover the costs associated with taking landlord’s instructions as well as the preparation and execution of new legal documents.
Change of Sharer (Tenant’s Request): £ 50 (inc. VAT) per replacement tenant or any reasonable costs incurred if higher. To cover the costs associated with taking landlord’s instructions, new tenant referencing and Right-to-Rent checks, deposit registration as well as the preparation and execution of new legal documents.
Early Termination (Tenant’s Request): Should the tenant wish to leave their contract early; they shall be liable to the landlord’s costs in re-letting the property as well as all rent due under the tenancy until the start date of the replacement tenancy. These costs will be no more than the maximum amount of rent outstanding on the tenancy.
During the tenancy (payable to the provider) if permitted and applicable
Utilities: gas, electricity, water
Communications: telephone and broadband Installation of cable/satellite
Subscription to cable/satellite supplier
Television licence
Council Tax
Other permitted payments
Any other permitted payments, not included above, under the relevant legislation including contractual damages.
Tenant protection
Hayward Fox is a member of ARLA Propertymark CMP, which is a client money protection scheme, and also a member of The Property Ombudsman Scheme ( which is a redress scheme. You can find out more details on the agent’s website or by contacting the agent directly.
Rental payments
Rents are payable in advance by standing order with all payments being made 72 hours prior to your rent due date to allow for clearance.
Landlord Fees
Tenant Find: 60% of first months rent, minimum £ 594 (inc VAT)